Welcome! I’m back. We are going to be adding a pretty large size addition to our house this next spring, so what better place to document our progress. We are currently in the permitting stage. We will be starting construction in February or March. I’m telling myself there is a good chance it’ll be April – we’ll see. We definitely have a ways to go, which gives me time to drive myself in circles over all the design decisions.
I’ve become completely obsessed, so the blog is going to be my metal dump on all the options, decisions, and inspiration. Hope you enjoy being along for the ride.
As a side note – I’m working on reviving this blog. It’s going to take a while to re-familiarize myself with it and how to even use it, while probably going though some theme changes. You know how you have to buy yourself a new outfit to start running? That’s how I feel about blog page themes and posting. :) So bare with me.
As another side note – I’ve created a new instagram @betterremade, which you should definitely follow.
I suppose to start, I’ll explain what we are doing…from the beginning. I apologize in advance. This wordy, but I figured I had to just lay a base. I’ve split the posts into the lower floor, and then I’ll post a shorter upstairs post later this week.


I found this most adorable drawing that I did earlier this year when we started down the path of exploring an addition. Isn’t it cute?! Still a bit modest, I thought a very cute house. I especially loved that it wasn’t a full 2 stories, but still more like 1 1/2 stories – seemed very proportional.

But now…here we are. Quite a bit different, and quite a bit larger. I blame it all on the foundation. Long story short, our foundation wasn’t strong enough to just go up, so we have to build a few foundation. The new foundation will be poured 6 feet in front of the existing house. By doing that, we can build back on to the original house allowing the new foundation to take most of the weight load.
The windows and trim aren’t totally accurate. Don’t worry – I am keeping myself up with that! The placement is correct, but trim options and window options with different pane layouts are driving me in circles.
My biggest intention, besides the obvious needing more square footage, was to pull the house together to look like it was built just once, as one house, instead of the 3 part renovation that it truly will be. Here are some photos of the house’s evolution.

Original (1939)

How we bought the house (2009)

Where we are now
The living room was added on decades ago, in what I think was a pretty awkward manner. My goal is to pull the house back together to look completely cohesive.
I digressed. Back to the plan.
Because of the larger downstairs footprint, the upstairs will be larger as well. Once things started, it was like, “well if we are going this, I guess we should do this…” Originally we were just thinking of 2 bedrooms and 1 bathroom upstairs. But
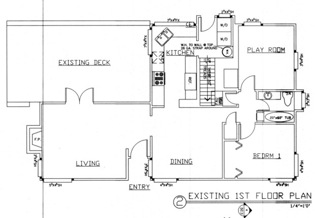
Here is the current downstairs

Initially we were thinking of leaving this pretty much the same, but flipping the stairs so that you’d go up from the dinning room instead of through the kitchen.

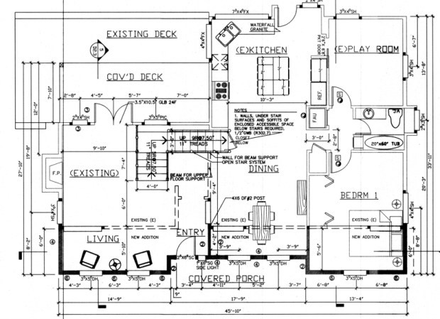
But instead we are removing the staircase completely and pushing the kitchen wall to the back bedroom. The kitchen will be about 10 feet wide so we will be able to fit a large island in the center. The backdoor will open directly into the kitchen, which will be awesome for outdoor grilling. The staircase will be rebuilt in the entry.
I’ve always dreamed of having a staircase in the entryway. My main reason – I want to be able to drape garland over it at Christmas time. Big deal! I know. Almost on par with a second bathroom.
Coming up with the plans definitely required us to think about how we live, and how we want the house to function – currently as well as the kids get older. I’m hoping that the layout will be able to evolve.
We’ll be able to have a large island in the kitchen. We won’t put it in right away. We’ll continue the hardwoods into the kitchen, and I think in the beginning just have the table in the kitchen. I’d like to live a bit in the kitchen before deciding on the dimensions and what kind of clearance well want around. Oh – and then there is also the details of budget. We are putting off whatever we can to finish at a later date.
As the kids are young, and into teen years, well honestly and beyond, I envision a lot of kitchen island eating. I’d love to have the kitchen open to a family room style room. The plan above shows a dining room table, but with the expanded space, I’m thinking we’ll be able to turn that into a family room with TV.
The living room is being expanded by 6 feet, but the new staircase will cut in a bit to the space, giving it somewhat of an awkward space. Honestly, I’m completely terrified this won’t work, and I will have ruined the floorplan, but I’m hoping that we can fit the dining room table, along with with 2 small love seats to have a quiet conversation area away from the TV and toy filled family room.
The back bedroom will have a pocket door into the kitchen, as well as it’s original doorway. That room will function as a playroom AKA dumping zone for all the bright plastic toys.
I really wanted to create separate living spaces – an intimate conversation area, a loungy TV/family room, and then a playroom, which I see changing as the kids get older, and more importantly as I am able to purge toys. As much as I love this little house, it’ll be really nice to be able hang at the house, without all having to be in same room – which is pretty much how life is now. It’s been great as toddlers, I always know where they are and what they are doing. But soon, they aren’t going to want to be in the same room.
So I think that’s enough for this post. I’ll get the upstairs post a bit later this week.
Have a great week!
